The Best Continuum on South Beach Floor Plans
- loes
- October 7th, 2019
What are the Best Floor Plans at Continuum on South Beach?
Floor Plans that are most immune against Recessions or Market Corrections
What do we mean when we say the best floor plans at Continuum on South Beach? We mean the floor plans that are most desired, those that are most unique and offer the best features. High-value units that offer unique features are most likely to appreciate over time and to perform well, even in bearish markets.
The Miami market has seen a fair share of generic product, mostly bought by investors and intended for the rental market. These units are often characterized by more affordable finishes that might look expensive for those without much experience. We have been able to follow these generic, rental type of units and they have shown to remain at the same price level without much appreciation. Especially in a bearish market, many investors will offload these generic products leading to a large oversupply of basically the same generic product.
When investing in Continuum South Beach or any other Miami condo investments for that matter, you should focus on units that offer a better value. Those are often characterized by: superb water views, corner units, units with extra high ceilings, units with large terraces or large residences with 3+ bedrooms, which are scarce and desired with today’s buyers.
We selected the best Floor Plans at Continuum on South Beach for you!
The Strongest Floor Plans at Continuum North Tower
The 01 & 02 Line | Floors 21 till 33
The 01 & 02 line in the North tower above the 20th floor belong to some of the best lines in the building. These are three bedroom units, which come with our without a den and vary between 2,621 and 3,030 SF. Both lines offer mesmerizing ocean views; the 01 line offers north east views, while the 02 line offers south east views

Strength of this floor plan:
The 01 | Floors 10 – 20
The 01 line on the lower floors offers large 2 bedroom units with a den. Units measure 1,977 SF of interior with 2,395 in total SF

Strength of this floor plan:
The Strongest Floor Plans at Continuum South Tower
The 05 Line | Floors 22 till 29
The 05 line in the South tower above the 22nd floor is also one of the best lines in the building. These are either 2 bedrooms with a den or three bedrooms units with water views of the ocean, the Government cut and Fisher Island

Strength of this floor plan:
The 06 Line | Floors 30 – 35

Strength of this floor plan:
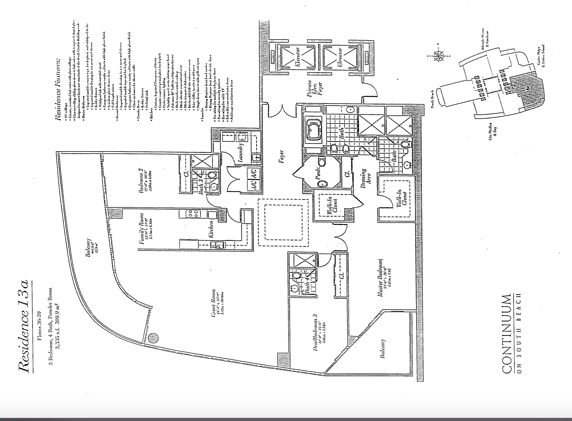
The 04 Line | Floors 30 – 39
The 04 line is a 3 bedroom unit on a higher floor with beautiful views over the Government Cut and Fisher island
♦ Units 3604 – 3904: 3 Bedrooms | 4.5 Bathrooms | 3,335 Interior SF | 3,560 Total SF

Strength of this floor plan:



